Casa indipendente in vendita

Racale, Via Melissano
€ 118.000
4 locali 4 locali
130 Mq 130 Mq
1 bagno 1 bagno

Casa indipendente in vendita

Racale, Via Melissano

Descrizione annuncio

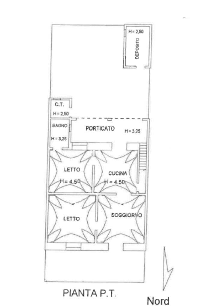
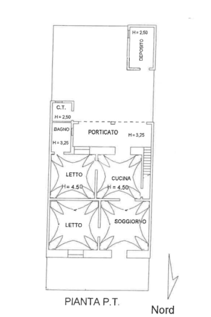
RACALE: casa indipendente al piano terra, composta da ingresso soggiorno, due camere da letto matrimoniali, cucina abitabile tutto con volte a stella, un bagno e ripostiglio, angolo cottura, giardino retrostante con zona lavanderia e ampio ripostiglio cambusa, lastrico solare di proprietà accessibile da scala esterna. Allaccio al metano e acquedotto.

Mostra tutto

Nelle vicinanze

Trasporto pubblico Trasporto pubblico
Racale-Alliste
Racale-Alliste
1,0 Km
Melissano
Melissano
2,4 Km
Ricariche auto elettriche Ricariche auto elettriche
Eneldrive Stazione Racale
1,0 Km
Scuole Scuole
Scuole
250 m
Scuola Media Dante Alighieri
2,1 Km
Istituto Comprensivo
2,4 Km
Scuola Elementare
2,4 Km
Farmacia Farmacia
Farmacia Peschiulli Dr. Mario
730 m
Farmacia Tundo
1,7 Km
Farmacia Comunale
2,4 Km
Farmacia Caputo
2,5 Km
Farmacia Trotta
2,9 Km
Supermercati Supermercati
Famila
990 m
Supermac
1,4 Km
Conad
2,2 Km
Negozi Negozi
Panificio Francioso
310 m
Abiti Dal Lavoro
600 m
Consiglia
610 m
Stefanì
880 m
Festival Snack
1,4 Km
Bar Bar
Time
400 m
Bar Carioca
2,6 Km
Ristoranti Ristoranti
L‘Acchiatura
440 m
Principe di Napoli
630 m
Pizzeria Il Mattero
1,5 Km
A Casa tu Martinu
2,6 Km
Pizzeria da Gigi
2,9 Km
Mostra tutto

Caratteristiche

Rif.:
61108475
Piano:
1 di 1 (Piano terra con giardino)
Camere da letto:
2
Arredamento:
Assente
Condizionamento:
Assente
Ascensore:
No
Mostra tutto
Prezzo Prezzo
€ 118.000
Rata mutuo Rata mutuo
€ 556 / mese
Proponi il tuo prezzoProponi il tuo prezzo

Classe Energetica

G
G
G
G
G
G
G
G
G
EP globale non rinnovabile:
168.00 kW h/m² anno
EP globale rinnovabile:
168.00 kW h/m² anno
EP invernale del fabbricato:
EP estiva del fabbricato:
Anno di costruzione:
1980
Riscaldamento:
Autonomo
Tipo impianto:
A radiatori
Tipo alimentazione:
Metano

Ti interessa visionare l'immobile?

Fissa un appuntamento  Fissa un appuntamento

Richiedi informazioni

Clicca su Leggi per aprire l'informativa
* Questi campi sono obbligatori

Calcola il tuo mutuo

Semplice e senza impegno
Anticipo

( % )
Mutuo

( % )

pochi semplici passi

inserisci i tuoi dati
Questionario completato
Grazie per aver richiesto un appuntamento senza impegno con un nostro Consulente del Credito e Assicurativo.

Hai inserito correttamente tutti i dati necessari e a breve riceverai una e-mail con un link da convalidare per inviare i tuoi dati.
Affiliato
Studio Taviano Sas
Corso Vittorio Emanuele II, 52 73057 Taviano (LE)

Il nostro staff


  • Eleonora Esposito Mosco
    Affiliata

  • Vincenzo Bacco
    Collaboratore

  • Sara Vulcano
    Responsabile
Corso Vittorio Emanuele II, 52 73057 Taviano (LE)
Zona: SALENTO:Taviano-Mancaversa-Torre Suda-Capilungo-Posto Rosso
Mostra su mappa
Orari: lunedì-venerdì mattina 09.00/13.00 - lunedì-venerdì pomeriggio 16.00/21.00; sabato 09.00/13.00 16.00/18.00
Affiliato
Studio Taviano Sas
Corso Vittorio Emanuele II, 52 73057 Taviano (LE)

2026 Tecnocasa Franchising S.p.A. - P. IVA 08365160152 - Via Monte Bianco 60/A 20089 Rozzano (MI). Ogni agenzia ha un proprio titolare ed è autonoma. Privacy policy | Policy utilizzo | Cookie policy