Casa indipendente in vendita

Taviano, Via Cesenatico - Marina Di Mancaversa
€ 89.000
3 locali 3 locali
80 Mq 80 Mq
2 bagni 2 bagni

Casa indipendente in vendita

Taviano, Via Cesenatico - Marina Di Mancaversa

Descrizione annuncio

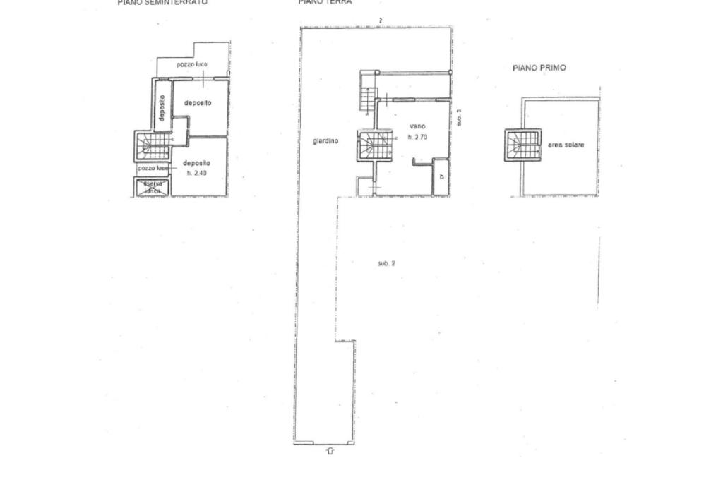
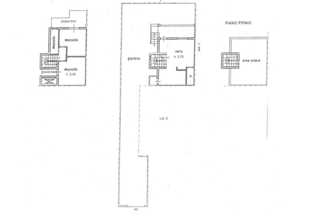
MARINA DI MANCAVERSA: a circa 800mt dal mare, villetta a schiera disposta su due livelli, con spazio esterno, al piano rialzato la zona giorno composta da sala da pranzo e cucina abitabile con un bagno, al piano seminterrato due camere da letto con un bagno. Da una scala interna all'abitazione, che si trova in soggiorno, si accede al lastrico solare di esclusiva proprietà con vista panoramica. OTTIMO INVESTIMENTO.

Mostra tutto

Nelle vicinanze

Ricariche auto elettriche Ricariche auto elettriche
Eneldrive Torre Suda
3,0 Km
Supermercati Supermercati
Geas
2,2 Km
Bar Bar
Cotriero Beach Club
1,4 Km
Ristoranti Ristoranti
Trattoria Maró
900 m
Trattoria del Pescatore
910 m
Risto 2.0
940 m
Mostra tutto

Caratteristiche

Rif.:
61129769
Piano:
Su più livelli
Camere da letto:
2
Arredamento:
Completo
Condizionamento:
Assente
Ascensore:
No
Mostra tutto
Prezzo Prezzo
€ 89.000
Rata mutuo Rata mutuo
€ 415 / mese
Proponi il tuo prezzoProponi il tuo prezzo

Classe Energetica

G
G
G
G
G
G
G
G
G
EP globale non rinnovabile:
168.00 kW h/m² anno
EP globale rinnovabile:
168.00 kW h/m² anno
EP invernale del fabbricato:
EP estiva del fabbricato:
Anno di costruzione:
2009
Riscaldamento:
Assente

Ti interessa visionare l'immobile?

Fissa un appuntamento  Fissa un appuntamento

Richiedi informazioni

* Questi campi sono obbligatori

Calcola il tuo mutuo

Semplice e senza impegno
Anticipo

( % )
Mutuo

( % )

pochi semplici passi

inserisci i tuoi dati
Questionario completato
Grazie per aver richiesto un appuntamento senza impegno con un nostro Consulente del Credito e Assicurativo.

Hai inserito correttamente tutti i dati necessari e a breve riceverai una e-mail con un link da convalidare per inviare i tuoi dati.
Affiliato
Studio Taviano Sas
Corso Vittorio Emanuele II, 52 73057 Taviano (LE)

Il nostro staff


  • Eleonora Esposito Mosco
    Affiliata

  • Vincenzo Bacco
    Collaboratore

  • Sara Vulcano
    Responsabile
Corso Vittorio Emanuele II, 52 73057 Taviano (LE)
Zona: SALENTO:Taviano-Mancaversa-Torre Suda-Capilungo-Posto Rosso
Mostra su mappa
Orari: lunedì-venerdì mattina 09.00/13.00 - lunedì-venerdì pomeriggio 16.00/21.00; sabato 09.00/13.00 16.00/18.00
Affiliato
Studio Taviano Sas
Corso Vittorio Emanuele II, 52 73057 Taviano (LE)

2025 Tecnocasa Franchising S.p.A. - P. IVA 08365160152 - Via Monte Bianco 60/A 20089 Rozzano (MI). Ogni agenzia ha un proprio titolare ed è autonoma. Privacy policy | Policy utilizzo | Cookie policy