Casa indipendente in vendita

Taviano, Via Generoso Previtero
€ 60.000
4 locali 4 locali
60 Mq 60 Mq
2 bagni 2 bagni

Casa indipendente in vendita

Taviano, Via Generoso Previtero

Descrizione annuncio

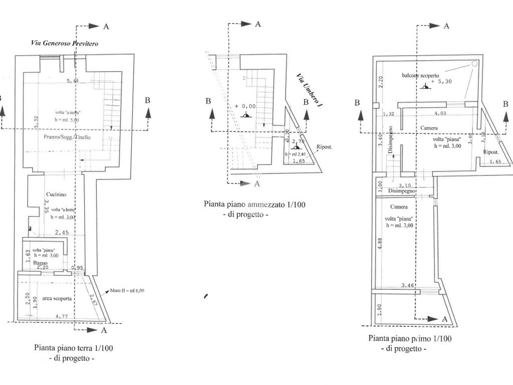
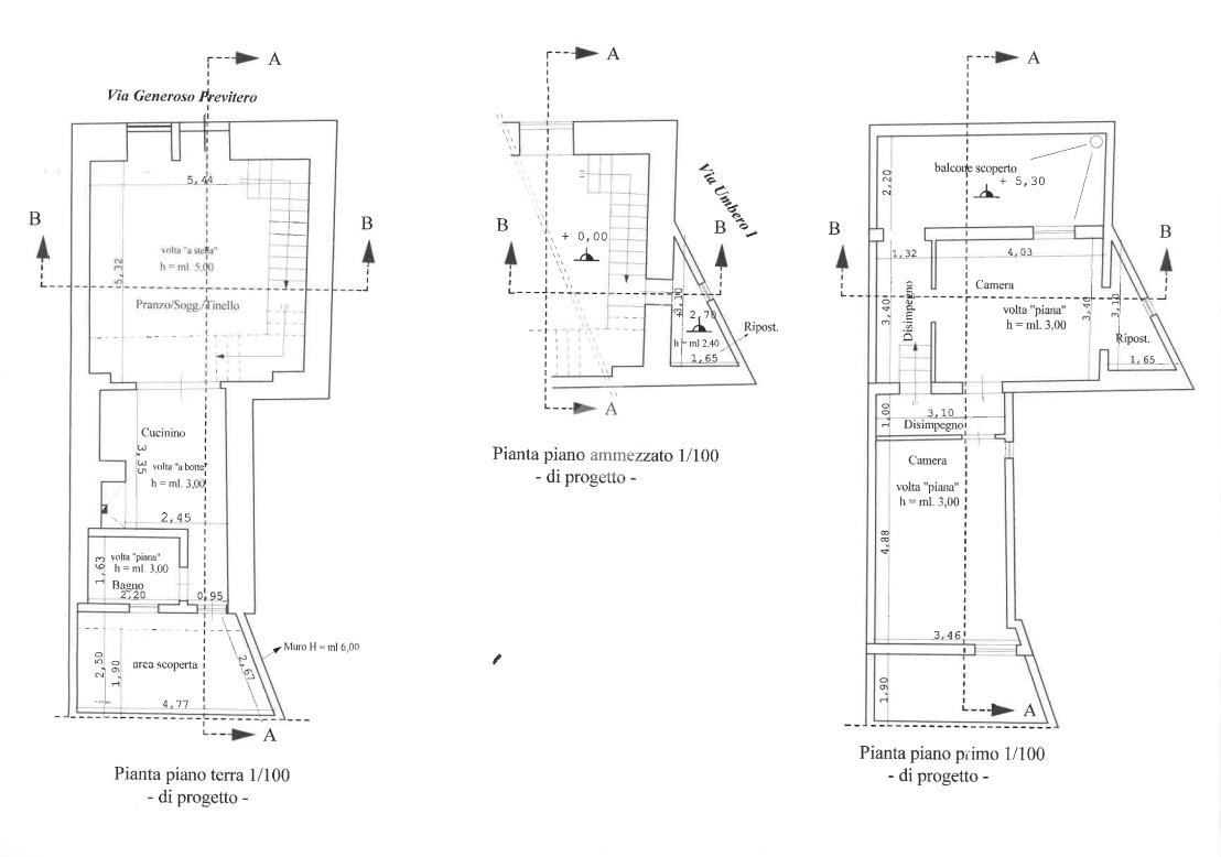
TAVIANO: in zona centrale, casa indipendente posta su due livelli, allo stato rustico avanzato, composta al piano terra da ingresso soggiorno, cucina abitabile un bagno e ripostiglio con volte a stella e pozzo luce retrostante, al piano primo due camere da letto e bagno con terrazzino.

Mostra tutto

Nelle vicinanze

Trasporto pubblico Trasporto pubblico
Taviano
Taviano
390 m
Racale-Alliste
Racale-Alliste
1,8 Km
Ricariche auto elettriche Ricariche auto elettriche
Eneldrive Stazione Racale
1,8 Km
Scuole Scuole
Scuole
2,6 Km
Farmacia Farmacia
Farmacia Peschiulli Dr. Mario
2,6 Km
Supermercati Supermercati
Supermac
1,1 Km
Famila
2,6 Km
Negozi Negozi
Stefanì
2,3 Km
Abiti Dal Lavoro
2,3 Km
Consiglia
2,4 Km
Panificio Francioso
2,5 Km
Festival Snack
2,6 Km
Bar Bar
Time
2,6 Km
Ristoranti Ristoranti
A Casa tu Martinu
310 m
Principe di Napoli
2,3 Km
L‘Acchiatura
2,4 Km
Mostra tutto

Caratteristiche

Rif.:
61170645
Piano:
Su più livelli
Terrazzi:
2
Camere da letto:
2
Arredamento:
Assente
Condizionamento:
Assente
Mostra tutto
Prezzo Prezzo
€ 60.000
Rata mutuo Rata mutuo
€ 278 / mese
Proponi il tuo prezzoProponi il tuo prezzo

Classe Energetica

G
G
G
G
G
G
G
G
G
EP invernale del fabbricato:
EP estiva del fabbricato:
Anno di costruzione:
1960
Riscaldamento:
Assente

Ti interessa visionare l'immobile?

Fissa un appuntamento  Fissa un appuntamento

Richiedi informazioni

Clicca su Leggi per aprire l'informativa
* Questi campi sono obbligatori

Calcola il tuo mutuo

Semplice e senza impegno
Anticipo

( % )
Mutuo

( % )

pochi semplici passi

inserisci i tuoi dati
Questionario completato
Grazie per aver richiesto un appuntamento senza impegno con un nostro Consulente del Credito e Assicurativo.

Hai inserito correttamente tutti i dati necessari e a breve riceverai una e-mail con un link da convalidare per inviare i tuoi dati.
Affiliato
Studio Taviano Sas
Corso Vittorio Emanuele II, 52 73057 Taviano (LE)

Il nostro staff


  • Eleonora Esposito Mosco
    Affiliata

  • Vincenzo Bacco
    Collaboratore

  • Sara Vulcano
    Responsabile
Corso Vittorio Emanuele II, 52 73057 Taviano (LE)
Zona: SALENTO:Taviano-Mancaversa-Torre Suda-Capilungo-Posto Rosso
Mostra su mappa
Orari: lunedì-venerdì mattina 09.00/13.00 - lunedì-venerdì pomeriggio 16.00/21.00; sabato 09.00/13.00 16.00/18.00
Affiliato
Studio Taviano Sas
Corso Vittorio Emanuele II, 52 73057 Taviano (LE)

2026 Tecnocasa Franchising S.p.A. - P. IVA 08365160152 - Via Monte Bianco 60/A 20089 Rozzano (MI). Ogni agenzia ha un proprio titolare ed è autonoma. Privacy policy | Policy utilizzo | Cookie policy